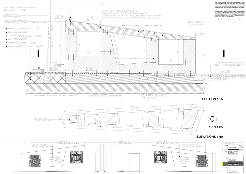
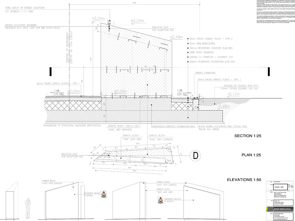
Production Detailed Drawings